
快速導航: 方案設計 地暖產品詳情 地暖安裝效果 服務流程 地暖安裝輔材 地暖安裝流程 地暖安裝案例 售后服務
150平米裝地暖要多少錢(四室兩廳兩衛)?地暖安裝是這幾年房子裝修選擇比較多的一種方式,地暖安裝的程序和工藝比較復雜,價格方面也比較貴,另一方面與面積也有直接的關系,150平米的房子算是比較大的了。地暖價格一般是包括,壁掛爐,分水器,管道,輔材,人工這幾部分決定的。具體的地暖安裝價格也要看選擇的地暖品牌和材質,不同的品牌價格不一樣,進口的一般比國產的貴。除了產品以外還有一塊是人工費,俗話說三分設備,七分安裝,好的安裝師傅有時候比較地暖產品更加重要。
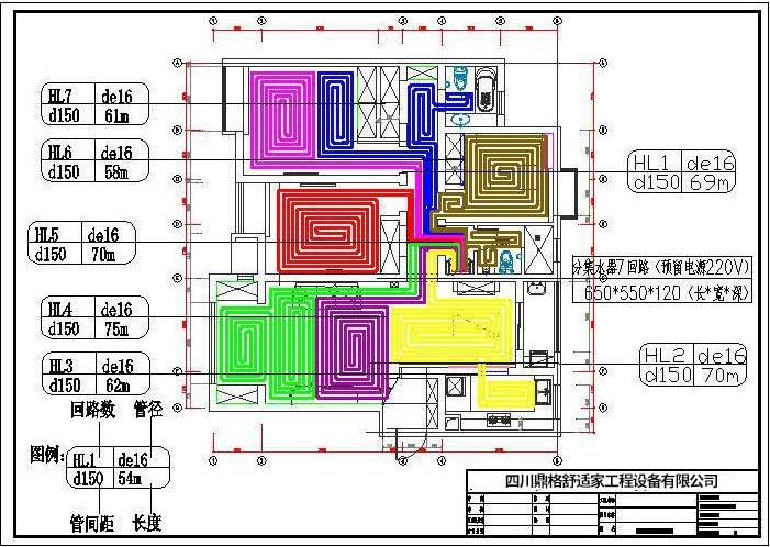
方案描述:此戶型建筑面積在155㎡,實際采暖面積為130㎡,生活用水點有兩個。綜合采暖與生活用水需求上,建議配置菲斯曼A1JF兩用鍋爐系列。采暖控制方面,主臥與次臥都為獨立房間,各自單獨配置一個房間溫控器,客廳、餐廳公共區域配上一個溫控器進行整體控制。
采暖面積:130㎡


3分鐘為你解決:產品報價和安裝問題!
成都實力廠家 溝通安裝更便捷
銷售經理24小時在線!
成都鼎格舒適家15年 專業安裝采暖地暖暖氣片、中央空調、新風系統、凈水系統、集銷售、設計、安裝、售后于一體的商業體系,旨在為每個客戶打造適宜的個性化舒適生活環境,秉襲“建一處工程,樹一塊口碑”,在工藝上精益求精,精工細作,堅持“一個客戶、一個設計、一個工程”,用專業和貼心打造高品質環境;
三重保障
1、品牌過硬:鼎格在產品質量上嚴格把關,精心挑選知名品牌,歐洲原裝進口品牌。
2、安裝過硬:多人專業化團隊,現場勘查,制定周密方案,一期、二期工程嚴格施工,保障使用年限。
3、售后過硬:電腦建檔,追蹤客戶使用情況,鍋爐終身保修。成都三環內4個小時到達,三環外8個小時到達,郊區12個小時到達,省內24小時到達!如果3小時未解決好,就換備用鍋爐,將客戶的鍋爐帶回公司進行維修,7個工作日未修好,免費換新機!
安全可靠、施工同期短、廠家直銷,出廠價安裝發貨!
目前貨梯市場魚龍混雜,請創業者擦亮雙眼,我們是廠家直銷,出廠價發貨安裝!






產品特點:
斯曼壁掛爐
選擇理由
④歷史悠久,1917年投產,國內國外知名品牌。
②在德國本土流行“熱水器選威能,壁掛爐就選菲斯曼”的說法。
③工藝先進,節能環保,后期使用費用遠低于同類產品。
④雙向售后,終身維修。(雙向指:可以選擇服務網點或經銷商做售后服務),推薦
選擇鼎格舒適家做售后,我們用專業為您解決所有后顧之憂。
④菲斯曼壁掛爐采用大尺寸液晶顯示,觸摸式按鍵,一周內手動編程模式下各時段供
暖溫度,可按自己意愿設定,不僅如此還增加室外溫度補嘗功能。
來保利PE管
選擇理由:
1、PE-XC 管,質量可靠的采暖管道無可辯駁。
2、技術可靠:引進德國技術、設備,亞洲采用輻射交聯技術生產。
3、進口原料,不添加化學交聯劑,衛生的PE-X管。
4、發改委支持重點高新技術產品權威檢測:國內率先通過110℃,環應力2.5MPa,8760小時國家化驗中心檢測。
5、質量保證:2001年通過ISO9001:2000國際質量體系認證。
6、使用放心:使用溫度 -70℃~95℃,壽命70年。
7、進口品質,國產價格,您值得擁有。
圖本暖氣片
遠擇理由:
① Tubedeluca來源于意大利,是一家擁有悠久歷史的家族企業,產品覆蓋工業,家業,民用建筑,機械制造,電子,儀表,化工等各個領域。
② 圖本只制造高質量、優性價比高的產品。圖本產品不僅覆蓋歐洲大陸,更遠銷亞洲各地,特別是中國市場,2014年一進入市場,就廣受采暖行業的青睞備受好評。



地暖安裝配置 | |||||
產品 | 品牌 | 產品優勢 | 尺寸 | 適用面積 | 原產地 |
壁掛爐 | 菲斯曼 | 1.防塵、耐潮、耐酸、抗刮擦,高效散熱能力突出。 | 725*340*400 | 100㎡ | 德國 |
采暖管材 | 來保利PE-XC | 1.耐熱耐寒性能、冬季不會凍裂,易彎曲,適用壽命長,抗蠕變能力強。 | Φ16/Φ25 | / | 中國(佛塑集團) |
采暖管材 | 海利克斯姆PE-XC | 1.純物理電子東輻照交聯,交聯度均勻、綠色環保。 | Φ16/Φ25 | / | 德國(進口) |
暖氣片 | 圖本 | 1.導熱更均勻,脫脂,磷化,漂洗三級預處理,使用壽命更長久,規格多樣,安裝簡易,可掛于墻面或落于地面,美觀且便捷。 | 22PKKP 600*800 | 11㎡ | 意大利(進口) |
分集水器 | 圖本 | 1.Tubedeluca來源于意大利,是一家擁有悠久歷史的家族企業,產品覆蓋工業,家業,民用建筑,機械制造等領域。 | / | / | 意大利(進口) |






以上為地暖安裝,150平米裝地暖要多少錢(四室兩廳兩衛)、菲斯曼產品詳情及地暖安裝輔材介紹的詳細內容,更多優惠請咨詢客服,成都鼎格舒適家傾情為您解答。